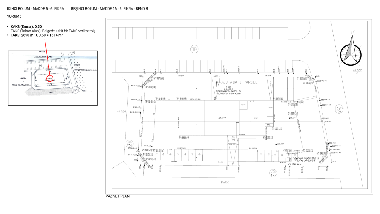
INTERFACE 402
Project Description
The project is designed as a technology-oriented office that combines workspace, service areas, and a sales/showroom function within a single structure. It responds to the client’s demand for a flexible and efficient working environment while also accommodating public interaction. The building hosts approximately 60 users and integrates both office and commercial functions into a cohesive spatial system.
Located on a sloped site, the design is shaped by the existing topography, creating stepped platforms that strengthen the relationship between the building and the landscape. This approach allows for multiple access points and enhances both circulation and spatial experience. The massing is carefully organized to ensure clarity in movement, efficient use of space, and maximum exposure to natural light.
Materials
The material palette consists of exposed concrete, glass, and steel elements. Concrete establishes a strong and grounded base that integrates with the terrain, while glass façades provide transparency and support daylight penetration. Steel structural elements enable flexibility and allow for large-span interior spaces. Together, these materials create a balanced architectural language that reflects both functionality and contemporary design values.